-
5 Attachment(s)
2 sided technique
I am working on a project that would benefit from a quick method to flip the part for 2-sided cutting. I've seen guys use dowel/locator pins but had remembered seeing a video on another method that uses the edge waste to secure the part when flipping it over. Here is the original video I saw as well as some photos of my test part (tissue box cover).
https://www.youtube.com/watch?v=BLD4dFoXC7o
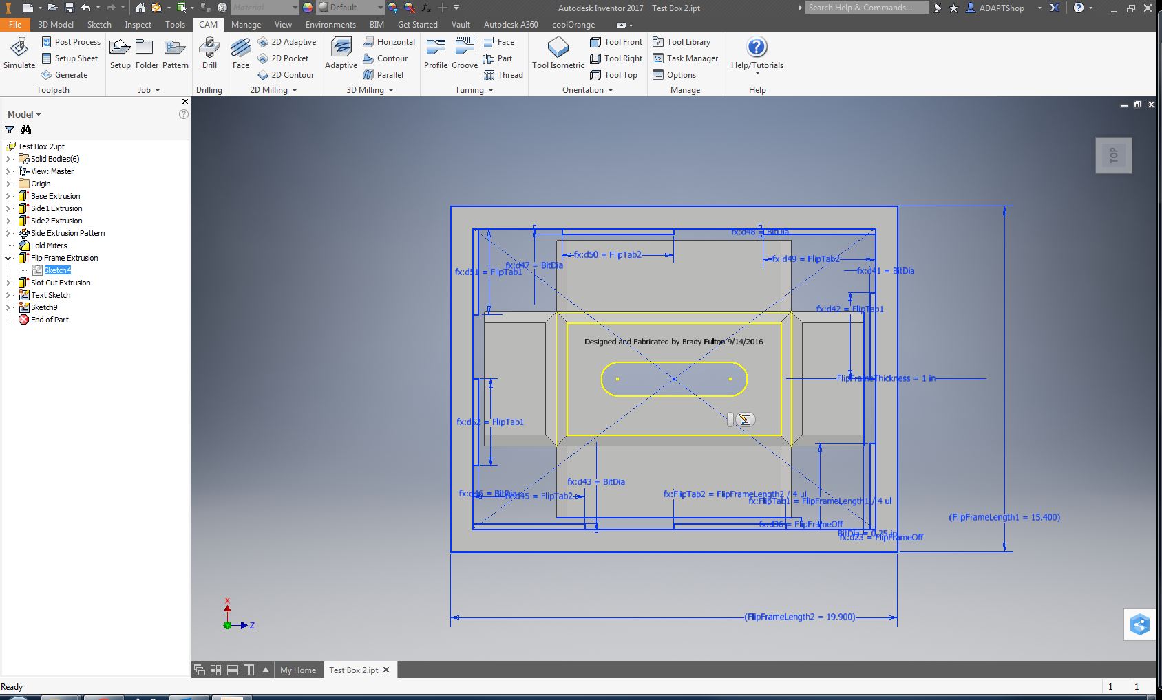
Designed in Autodesk Inventor HSM - Critical dimensions are the tabs on the inside of the flipping frame, their height needs to be your bit diameter and their length/location need to coincide with the part tabs when the part is flipped.
Attachment 28965
Side one completed:
(cant upload this image for some reason)
Part flipped and tapped back into place:
Attachment 28969
Side 2 finished:
Attachment 28968
Finished tissue box cover:
Attachment 28967